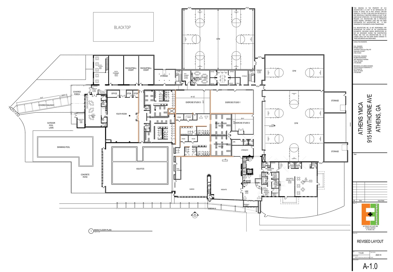
Grahl Construction and E+E Architects have worked diligently alongside YMCA staff to design a plan that both honors the history of our building and meets the needs of our growing community. Construction will take place in three phases, allowing the facility to remain open and continue serving members throughout the process.
The Future of the Athens YMCA

Progress Snapshot
Phase One Highlights:
New youth entry point and program rooms built into the former cardio room, racquetball courts, and strength center areas
Major site work included new parking lot entrance, additional sidewalk, covered canopy, and a redesigned youth drop-off and pick-up loop for safer access
System updates including fire sprinkler system and central heating and air as well as a mezzanine and two additional youth bathrooms
What was once familiar is becoming something new. These photos capture a glimpse of the transformation already underway.


What's Next:
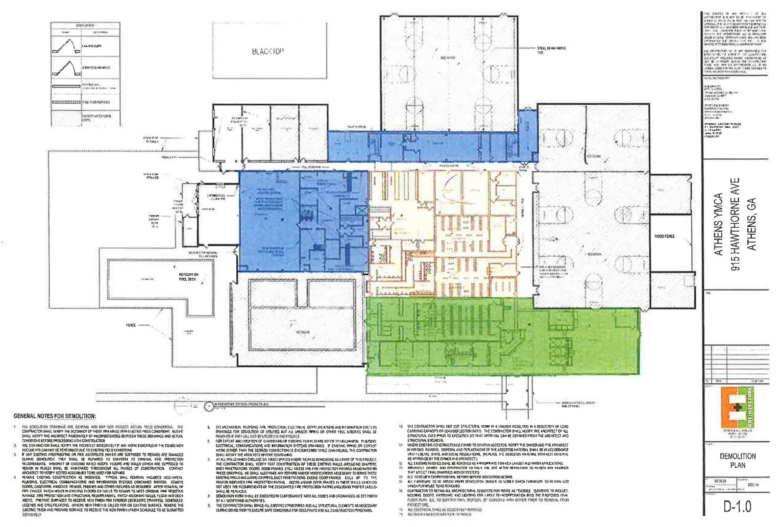
We are actively transforming the Athens YMCA and what you see today is just the beginning. Take a look at what is coming next as we move into phase two of this renovation.

The blue area highlights phase two, where we will build dedicated youth locker rooms - creating a safer, more functional space designed specifically for the children we serve each day.
Demolition started on May 6, 2026. Transforming the ladies health club space into new youth locker room and two family restrooms.
